

説明・備考
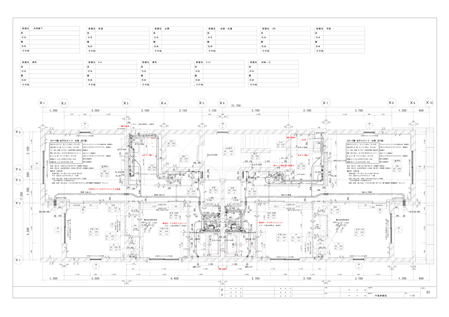
この図面は、建築設備計画における平面詳細図であり、建物内部のレイアウトと各種設備配管の配置を示したものです。図面全体は X1〜X10、Y1〜Y5 のグリッドで構成され、主要寸法として各スパンが明示されています。平面上には各室の区画が描かれ、室名や仕上げが表形式で整理されています。そして、給水・給湯・排水などの設備配管ルートが作図され、機器位置や接続点が明確に記載されています。また、壁・開口・建具の位置、設備機器の設置スペース、寸法情報が詳細に記されており、施工時の基準図として利用できる構成になっています。給水給湯のプレハブ配管加工用に、各機器への接続方法や高さを表にまとめています。
使用ソフト: Jw_cad
データのダウンロードにはログインが必要です。